33 Heritage ParkCochrane, AB T4C 3G9




Mortgage Calculator
Monthly Payment (Est.)
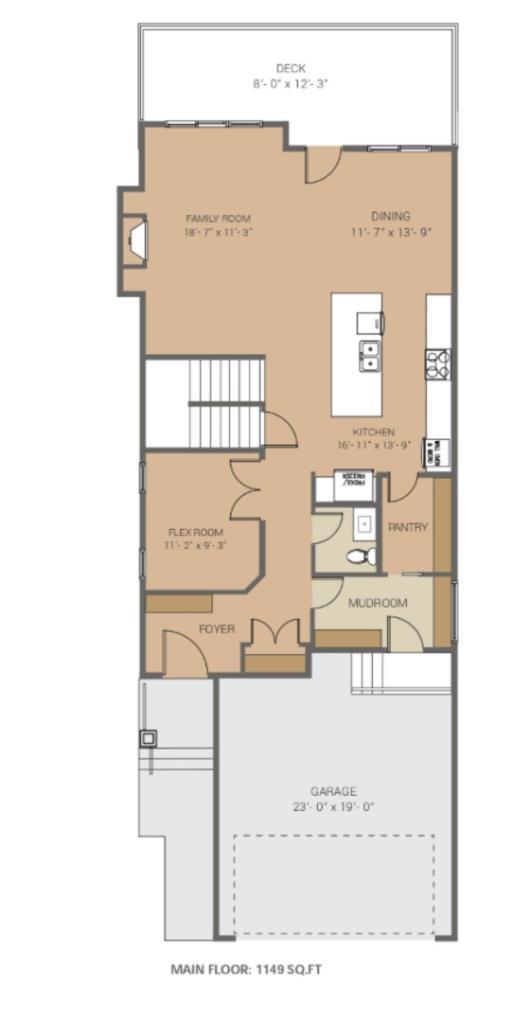
$4,102This home is currently under construction. Photos are for representation purposes only and are not of the actual property. Finishes, features, and specifications may vary. Discover the perfect blend of character and modern design in this Contemporary Craftsman–style home, thoughtfully designed to maximize light, comfort, and scenic surroundings. Backing onto green space with partial mountain views, this residence offers a peaceful setting paired with refined finishes and functional living spaces. The main and upper levels feature three well-appointed bedrooms and 2.5 bathrooms, ideal for families or professionals seeking a stylish yet practical layout. An enhanced lighting package throughout the home creates a bright, inviting atmosphere, highlighting the craftsmanship and architectural details at every turn. Upstairs, the secondary bedrooms are connected by a Jack & Jill bathroom, offering both privacy and convenience, while the primary bedroom provides a comfortable retreat designed for everyday living. The walk-out basement, currently undeveloped, presents endless potential to customize additional living space—whether for a recreation area, home gym, media room, or future guest suite—while maintaining direct access to the backyard and natural surroundings. With its Contemporary Craftsman aesthetic, scenic backdrop, and opportunity for future expansion, this home offers a rare combination of style, setting, and versatility—perfectly suited for modern living.
| 3 weeks ago | Listing first seen on site | |
| 3 weeks ago | Listing updated with changes from the MLS® |
Listing information is provided by Participants of the Alberta One Realty Listing Services (Pillar 9). IDX information is provided exclusively for personal, non-commercial use, and may not be used for any purpose other than to identify prospective properties consumers may be interested in purchasing. Information is deemed reliable but not guaranteed. Copyright 2026, Alberta One Realty Listing Services (Pillar 9)
Last checked 2026-02-03 04:30 PM UTC


Did you know? You can invite friends and family to your search. They can join your search, rate and discuss listings with you.